RU
UA

электрощитовое оборудование
cтроительство СЭС
электромонтажные работы

69063, Запорожье
ул. Академика Амосова, 107

+38 ‎(097) 519-48-92
+38 ‎(066) 731-24-96

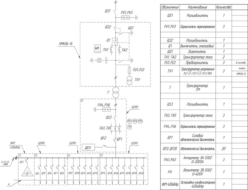
Комплектные трансформаторные подстанции на напряжение 35 кВ типа КТП-35-0,4 кВ

КТП-35/0,4 кВ представляет собой мобильное блок-контейнерное здание полной заводской готовности, состоящее из отсеков:

  • распределительного устройства 35 кВ (РУ-35 кВ);
  • распределительного устройства 0,4 кВ (РУ-0,4 кВ);
  • силовых трансформаторов.

В качестве распределительного устройства в РУ-35 кВ используются комплектные распределительные устройства внутренней установки из шкафов типа HMH «Ulusoy» с элегазовыми выключателями Merlin Gerin или из шкафов типа ODRA36 с вакуумными выключателями типа 3AH5 производства SIEMENS.





РУ-0,4 кВ комплектуется панелями одностороннего обслуживания серии ЩО90 со стационарно устанавливаемыми автоматическими выключателями либо рубильниками. Распределение электрической энергии по потребителям осуществляется кабелем марок ВВГ, ВБбШв, АВВГ, ААШв, ААБл. Вводы-выводы под кабельные заходы выполняются с уплотнением.

В КТП-35/0,4 кВ устанавливаются силовые двухобмоточные трехфазные трансформаторы сухого или масляного исполнения. Силовой трансформатор устанавливается в блок-контейнер или на открытую платформу. Сухой трансформатор размещается только в блок-контейнере мобильного здания. Под силовым масляным трансформатором в каждом отсеке расположен маслоприемник для 100% сбора масла, содержащегося в корпусе трансформатора. КТП-35/0,4 кВ комплектуются силовыми трансформаторами ОАО «Укрэлектроаппарат» г. Хмельницкий, ОАО «ЗТР» г. Запорожье, и другими, по желанию заказчика.

В КТП-35/0,4 кВ предусмотрено внутреннее освещение напряжением 220 В, 50 Гц и переносное освещение 36 В, 50 Гц. Для внутреннего освещения применяются потолочные светильники типа ЛПО с люминесцентными лампами. Для наружного освещения и освещения трансформаторного отсека применяются настенные светильники типа НПП-03-60. Для отопления применяются трубчатые электронагреватели или потолочные инфракрасные обогреватели . Расчетная температура наружного воздуха для проектирования отопления принята до минус 60°С, расчетная температура внутри помещения – не ниже плюс 5°С. По заказу в КТП-35/0,4 кВ устанавливаются системы противопожарной сигнализации, охранной сигнализации, вентиляции и кондиционирования, телеметрии, телемеханики с возможностью подключения к АСУ.

КТП-35/0,4 кВ поставляются потребителю полностью собранными, с установленным в них электрооборудованием, железнодорожным или автомобильным транспортом с закрытыми и опломбированными дверями. Портал под разъединитель устанавливается на месте, также на месте осуществляется подключение кабеля от разъединителя к РУ-35 кВ. Подключение силового трансформатора к РУ-35 кВ осуществляется кабелем. Если здание КТП-35/0,4 состоит из двух или более блок-контейнеров, то они отдельно доставляются автомобильным или железнодорожным транспортом на место монтажа, где и производятся стыковка блок-контейнеров между собой, электромонтажные и пусконаладочные работы.



Мы на карте

 

Разработка сайта Effective-studio