RU
UA

електрощитове обладнання
будівництво СЕС
електромонтажні роботи

69063, Запоріжжя
вул. Академіка Амосова, 107

+38 ‎(097) 519-48-92
+38 ‎(066) 731-24-96

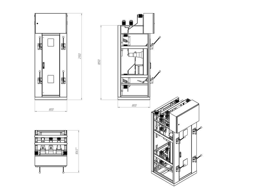
Комплектний розподільчий пристрій типу КВ-2009

Камери типу КВ-2009 (а також аналоги КСО-310, КСО-272, КСО- 285, КСО-336, КСО-298, КСО-203, КСО-266, КСО-386) являють собою набір окремих шаф з комутаційними апаратами, вимірювальними приладами, пристроями автоматики та захисту, а також апаратурою управління і сигналізації.

КРУ внутрішньої установки серії КВ-2009 призначені для роботи в мережах трифазного змінного струму, класу напруги 6; 10 кВ частоти 50 і 60 Гц в системах з ізольованою або заземленою через дугогасящий реактор або активний опір нейтраллю.

Шафи КВ-2009 випускаються для загальнопромислового застосування - використання в розподільних пристроях власних потреб електричних станцій всіх видів, на електричних підстанціях, в електроустановках промислових підприємств.


Конструктивно КВ-2009 складається з декількох основних складальних одиниць:

  • корпус з апаратурою
  • вакуумний вимикач
  • секція збірних шин
  • відсік релейного захисту

Корпус являє собою зварну металоконструкцію, розділену вертикальними і горизонтальними металевими перегородками на релейний відсік, відсік вакуумного вимикача, відсік збірних шин і кабельний відсік, в якому розташовуються також трансформатори струму, напруги і лінійні шини.

Усередині шаф КРУ розміщена апаратура головних ланцюгів: вакуумний вимикач; роз'єднувач РВЗ з заземлюючими ніжками; трансформатор власних потреб; вимірювальний трансформатор напруги; трансформатори струму, обмежувачі перенапруги та інша апаратура.

Тип і кількість апаратури може змінюватись за бажанням Замовника.

КВ-2009 передбачений комплект захистів (максимально-струмовий захист, перевантаження, струмова відсічка, захист від замикання на землю, контроль ланцюгів напруги, АВР та ін), облік електроенергії, обігрів.

Комірки комплектуються мікропроцесорними пристроями захисту типу: Micom, УЗА, МРЗС, Sepam, РС-80, РЗЛ та ін.
Ступінь захисту камер з боку фасаду ІР20 по ГОСТ 14254-96

Ми на мапi