RU
UA

электрощитовое оборудование
cтроительство СЭС
электромонтажные работы

69063, Запорожье
ул. Академика Амосова, 107

+38 ‎(097) 519-48-92
+38 ‎(066) 731-24-96

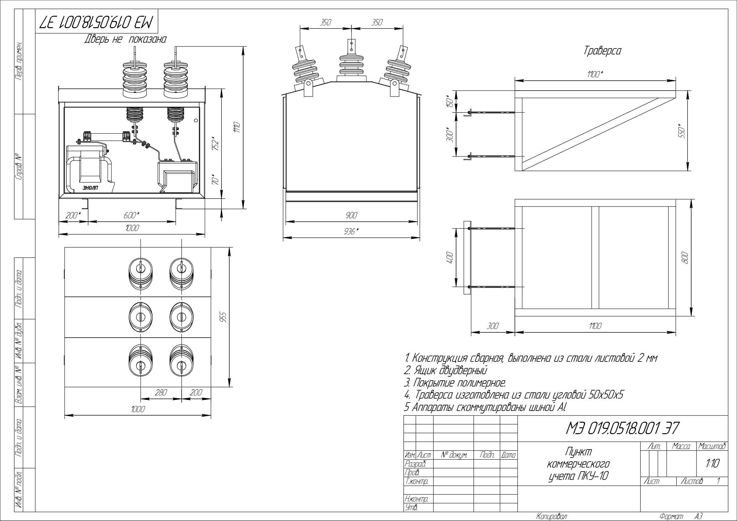
Пункт коммерческого учета электроэнергии типа ПКУ-10

Пункты коммерческого учета (далее ПКУ) предназначены для работы в воздушных распределительных сетях и используются для коммерческого учета потребляемой активной и реактивной электрической энергии при номинальном напряжении 10 (либо 6) кВ переменного трехфазного тока частоты 50 Гц. 

ПКУ может быть использован в качестве:

  • пункта коммерческого учета электроэнергии на границе балансовой принадлежности сети в случае, если граница проходит по стороне 10(6) кВ, а также для использования в составе автоматизированных систем контроля и учета электроэнергии (АСКУЭ) для передачи данных счетчика на диспетчерский пункт;
  • пункта коммерческого учета электроэнергии на границе балансовой принадлежности сети при подключении новых потребителей, а также для использования в составе автоматизированных систем контроля и учета электро-энергии (АСКУЭ) для передачи данных счетчика на диспетчерский пункт;
  • пункта контроля несанкционированного потребления электрической энергии потребителем.

Составные компоненты:

  • шкаф высоковольтный измерительный;
  • шкаф учета и передачи данных (ШУ);
  • кабель соединительный;
  • ограничители перенапряжений (ОПН);
  • монтажный комплект.

Высоковольтный шкаф (ШВ) представляет собой цельнометаллический, герметичный шкаф с открывающимися  дверями. На боковых стенках корпуса предусмотрены две дверки для доступа и обслуживания. Проходные изоляторы вмонтированы в крышу шкафа, к ним подключаются главные цепи.

Высоковольтный шкаф преобразует ток и напряжение в измерительные сигналы. Передача данных осуществляется по радиоканалам при помощи GSM-модемов или же по волокно-оптическим линиям связи (ВОЛС) при помощи волокно-оптических модемов. Используются измерительные трансформаторы напряжения (ТН) и трансформаторы тока (ТТ), количество трансформаторов зависит от схемы измерения; 2ТТ и 2ТН, 2ТТ и 3ТН, 3ТТ и 3ТН.

Мы на карте

 

Разработка сайта Effective-studio